Navigation aufklappen/zuklappen
Startseite
News
Umbau WHS Magdalensberg
Hofer Klagenfurt
Fassadengestaltung Wild
Wohnbebauung Lendorf
Reihenhaus Tessendorf / Klagenfurt
Hotel Nassfeld
Gewerbe
Wohn- und Geschäftshaus Klagenfurt
Büro- und Geschäftshaus Klagenfurt
Wohn- und Bürohaus Maria Elend
Cafe ATRIO Villach
EKZ-Südring Klagenfurt
Boardinghaus Klagenfurt
Städtebau
Wohnbebauung Tessendorf / Klagenfurt
Bebauungskonzept Welzenegg Klagenfurt
Wohnanlagen
Wohnanlage Schlosspark Krumpendorf
Wohnanlage Ossiach
Wohn- und Geschäftszentrum Ebenthal
Wohnanlage Ehrenthal
Wohnanlage Virunumgasse
Wohnbau
Wohnhaus Viktring
Wohnhaus Bodensdorf
Wohnhaus Finkenstein
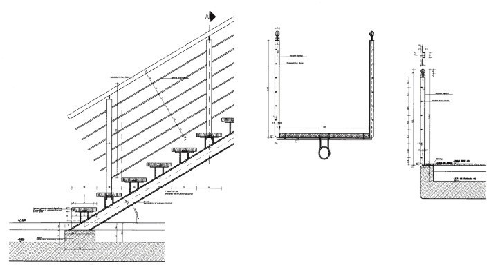
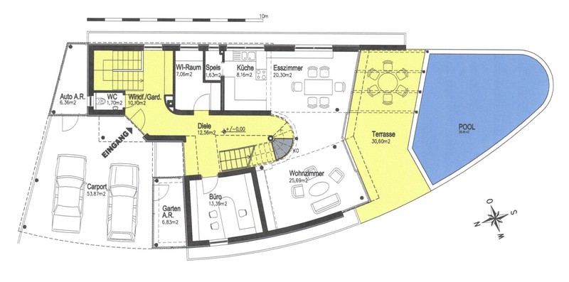
Wohnhaus Villach
Bungalow
"TIPO" modulhaus
"TIPO"
Grundrisse
"TIPO" additivo
Grundrisse
"TIPO" grande
Grundrisse
"TIPO" massimo
Grundrisse
Grundrisse anfordern
Kunst
Malerei
ÖL
Auarell / Leimfarbe
Akt
Bildhauerei
Kontakt
Partnerbüros
Impressum
Vita
Büro
Startseite
News
Gewerbe
Städtebau
Wohnanlagen
Wohnbau
Wohnhaus Viktring
Wohnhaus Bodensdorf
Wohnhaus Finkenstein
Wohnhaus Villach
Bungalow
"TIPO" modulhaus
Kunst
Kontakt
Partnerbüros
Impressum
Wohnhaus Wieltschnig Villach